

|
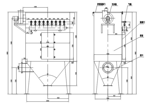
除塵器性能、型號 |
DMC-32 |
DMC-48 |
DMC-64 |
DMC-80 |
DMC-96 |
DMC-112 |
|||||||||
|
總過濾面積(平方米) |
24 |
36 |
48 |
60 |
72 |
84 |
|||||||||
|
過濾風速(m/min) |
1.04~1.67 |
1.15~1.62 |
1.21~1.74 |
1.25~1.67 |
1.27~1.62 |
1.28~1.68 |
|||||||||
|
處理風量(立方米h) |
1500~2400 |
2500~3500 |
3500~5000 |
4500~6000 |
5500~7000 |
6500~8500 |
|||||||||
|
濾袋數量(條) |
32 |
48 |
64 |
80 |
96 |
112 |
|||||||||
|
耗氣量(立方米min) |
0.032 |
0.048 |
0.064 |
0.08 |
0.096 |
0.11 |
|||||||||
|
入口濃度(g/立方米n) |
200 |
||||||||||||||
|
出口濃度(mg/立方米n) |
50 |
||||||||||||||
|
噴吹壓力(MPa) |
0.5~0.7 |
||||||||||||||
|
承受負壓(Pa) |
5000 |
||||||||||||||
|
設備阻力(Pa) |
≤1200 |
||||||||||||||
|
脈沖閥 |
規格 |
1" |
|||||||||||||
|
數量(個) |
4 |
6 |
8 |
10 |
12 |
14 |
|||||||||
|
電機型號功率 |
Y90S-2 |
Y90L-2 |
Y100L-2 |
Y132S1-2 |
Y132S1-2 |
Y132S2-2 |
|||||||||
|
(KW) |
1.5 |
2.2 |
3.0 |
5.5 |
5.5 |
7.5 |
|||||||||
|
設備重量 |
DMC(A) |
1350 |
1620 |
1850 |
2360 |
2800 |
3200 |
||||||||
|
DMC(B) |
1220 |
1470 |
1670 |
2150 |
2540 |
2880 |
|||||||||